01
SRM6-12 Fully insulated and enclosed Ring Main Unit
Model and Definitions

For example:
◇ SRM6-12-C/630DL indicates a load switch cabinet with a nominal voltage of 12kV, rated current of 630A, right-side expansion, and left-side cable entry and exit method.
◇ SRM6-12-CF/6301R signifies a combination unit formed by a load switch cabinet and a fuse combination cabinet. It has a bus voltage of 12kV and a bus current of 630A, with left-side expansion and right-side cable entry and exit method.
Performance Indexes
| Unit Code | Definition | Unit Code | Definition | ||
| C | Standard Single Set Load Switch Unit | - | Busbar Top Insulator | ||
| F | Load Switch-Fuse Composite Apparatus Unit | SL | Bus Coupler Unit | ||
| V | Circuit Breaker Unit | M | Measurement Unit | ||
| D | Cable Entry Unit (Without Switch) | PT | PT UNIT | ||
| + | Busbar Side lnsulator | 1K2(4) | Load Switch Unit with Double Insulator | ||
Technical Specifications
| Model | C Module | F Module | V Module | CB Module | ||
| Compound Switch | Composite Apparatus | Vacuum Switch | Isolation/ Earthing Switch | Vacuum Breaker | Isolation/ Earthing Switch | |
| Nominal Voltage KV | 12 | 12 | 12 | 12 | 12 | 12 |
| Rated Frequency Hz | 50 | 50 | 50 | 50 | 50 | 50 |
| Power Frequency Withstand Voltage (Interphase/Terminal) KV | 42/48 | 42/48 | 42/48 | 42/48 | 42/48 | 42/48 |
| Lighting lmpulse Withstand Voltage kV | 75/85 | 75/85 | 75/85 | 75/85 | 75/85 | 75/85 |
| Rated Currency A | 630 | Note ¹ | 630 | 1250/630 | ||
| Rated Closed Loop Breaking Current A | 630 | |||||
| Rated Cable Charge BreakingCurrent A | 135/135 | |||||
| Rated Circuit Making Current(Peak) A | 50 | 80 | ||||
| Rated Peak Withstand Current kA | 50 | |||||
| Rated Short-time Withstand Current :A/3s | 20 | |||||
| Rated Short-circuit Breaking Current kA | 31.5 | 20 | 25 | |||
| Rated Transfer Current A | 1750 | |||||
| Maximum CurrentforCompatible Fuses A | 125 | |||||
| Loop Resistance Ω | ≤ 300 | ≤ 600 | ||||
| Machinery Service Life Time | 5000 | 3000 | 5000 | 2000 | 5000 | 5000 |
Note: 1) It depends on the current rating of the fuse.
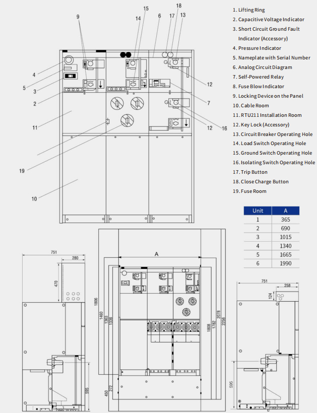
SRM 6 - 1 2 Gas-Insulated Switchgear Structure and Dimensions


